MiniPrè

All’interno di una delle case a schiera dell’arco portuale, in uno dei più famosi vicoli di Genova oggetto di recente e sempre più pronunciata riqualificazione urbana, si trova questo alloggio in formato tascabile. 

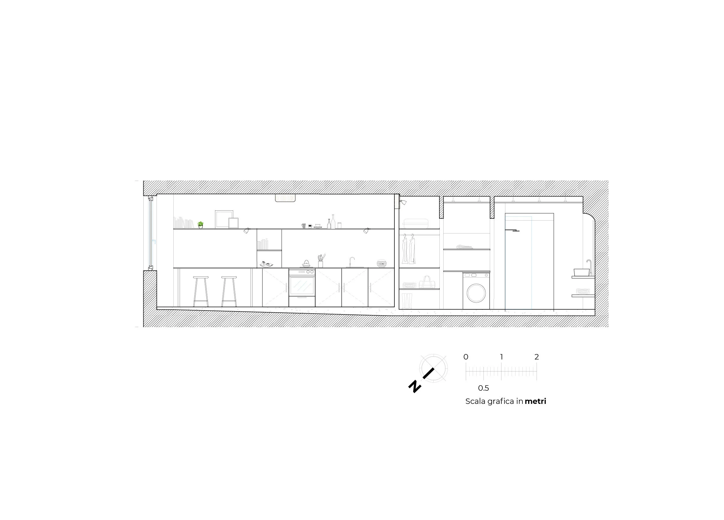
Il progetto si è confrontato con una disponibilità di spazio e di budget ridotti e con pessimo stato di conservazione degli interni, dovuto all’abbandono e alla generale scarsa manutenzione dello stabile. Uno spazio stretto e angusto, reso ancora più disagevole dalle partizioni interne, con solo due finestre affacciate sul vicolo. Il progetto ha voluto aprire il più possibile l’ambiente e renderlo unico, evidenziando le caratteristiche costruttive tradizionali del fabbricato stesso. Le caratteristiche e irregolari travi lignee del soffitto, di probabile origine medievale ed ancora in ottime condizioni, sono state riportate a vista e tinteggiate di bianco per rendere lo spazio luminoso. In tutto l’alloggio sono stati rifatti gli intonaci, ormai irrecuperabili. Una porzione di muro perimetrale tra le due finestre è stato lasciato mattoni a vista, sagomando il pavimento nell’incontro con la muratura, senza ausilio di battiscopa. Le travi in ingresso e nel bagno sono state lasciate del loro colore naturale. Tutto il bagno, realizzato dove prima era collocata la cucina, è rivestito in micro cemento.

L’arredo è stato pensato tagliato su misura per suddividere l’unico ambiente in modo estremamente funzionale, pur mantenendosi leggero e traguardabile. Partendo dall’ingresso, una parete attrezzata si estende fino alla finestra. Qui troviamo spazi di immagazzinamento, il blocco cucina,  e il piano di lavoro, dinamico, trasportabile e trasformabile in tavolo da pranzo o scrivania modificando l’altezza delle gambe. Sul lato opposto del locale il divano e l’area notte, separata da due librerie fino a soffitto, chiudibile a mezzo di tende scorrevoli.

Rilevante in questo progetto è stata l’organizzazione dell’illuminazione artificiale, pensata per essere il più possibile flessibile e funzionale. Tutta l’illuminazione dell’ambiente è infatti affidata a faretti removibili, che possono essere spostati a seconda delle esigenze. 

Stato

Sviluppo

Anno

2018

Dimensioni

32mq

Luogo

Genova

Incarico

Progetto preliminare, definitivo, esecutivo e direzione lavori.

Committente

Privato

Impresa

Zena Costruzioni s.r.l.

Fotografie dello stato ante-progetto

Fotografie di cantiere

 

Internillabb32mq