La Strega bar

Abstract

Un tributo al territorio, dove per estensione, si rappresenti con la simmetria delle linee, la luce e la volontaria impostazione di realizzazione da “ laboratorio”, lo stesso spirito presente nella lavorazione dell’artigianato delle eccellenze alimentari del territorio.
La sfida della disposizione lineare delle doghe, part richiama il segno dalle geometrie verticali delle finestre dei prosciuttifici, mantenendone l’intenzione e la rappresentazione geometrica, ma riferendogli nuovi significati.

In ultimo,l’uso del materiale di riciclo, segue la linea di un territorio che al mantenimento delle proprie eccellenze riconosciute ormai a livello mondiale, associa un metodo giusto e consapevole dell’ambiente.

Il concept

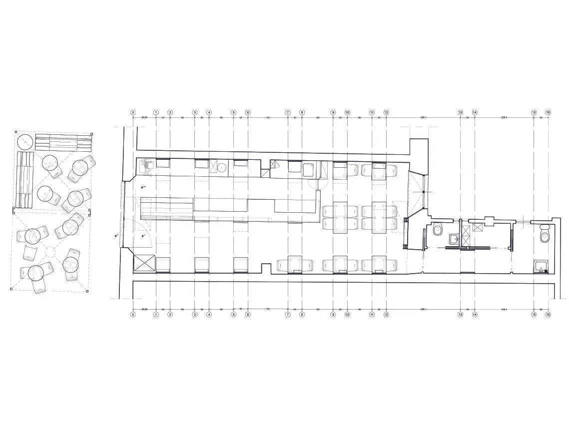
L’intervento agisce su una nuova spazializzazione del locale la Strega,che,lasciando immutata la parte architettonica, individua una concatenazione di spazi parziali, atti a definire le diverse funzioni di fruizione indicate dalla committenza.

L’identità visiva del locale acquisisce una dimensione pragmatica, suggerita da una dimensione cognitiva immediata: l’uso delle tre sezioni del locale, desk, stand-up, dining, propone tre linguaggi spaziali differenti per misure, uso ed ambientazione, mantenendo un segno comune di identificazione nel materiale scelto,il legno.

La scelta del legno di recupero da pallet, conferisce un senso empatico ed emozionale, alternativo al codice di produzione industriale, e sottolinea, enfatizzando la dichiarata ed obbligatoria manualità per la creazione dello spazio, la scelta di qualità artigianale dei prodotti serviti nel locale.

Le sedie dialogano in cromia con il pantone verde in parete, evidenziando ulteriormente il distacco creato dall’ elemento verticale delle doghe.

Gli elementi di significazione del concept

Le costole

La Percezione del locale è scandita, nell’intenzione del recupero della profondità, da nastri funzionali, che come costole circuiscono lo spazio formando un cono ottico, ulteriormente enfatizzato da movimenti dei nastri stessi che sul soffitto formano i vani luce, spingendo visivamente i fruitori del locale verso la zona più ampia

Le costole definiscono porzioni di pareti attrezzate ed ulteriormente attrezzabili.

Pensate affinché siano customizzabili a seconda delle necessità del locale,le costole sono composte dal susseguirsi di doghe, fissate ad una distanza di 19mm.

La parete diventa quindi attrezzabile con elementi che si possano inserire in queste fughe, quali vassoi, mensole d’esposizione, appendiabiti etc.

I Tavoli che con una continuità filologica chiudono nella parte più bassa le costole, rappresentando la loro appendici a terra rivestiti di Valchromat un derivato del legno, per una globale sostenibilità del progetto

Le doghe

Le doghe sono la testimonianza del commercio locale; sono infatti derivate da pallet di recupero e rappresentano il materiale che trasmette senso di luminosità e calore, utilizzato in un progetto, come questo, dalla chiara e ricercata influenza scandinava.

Le doghe sono state tagliate e trattate a mano in modo da conservare i segni del tempo e della storia che li ha portati ad una seconda vita; di larghezza fissa (55 cm è la larghezza di ogni costola) hanno altezza diverse, segno del natura viva del materiale.

La distanza che intercorre tra una doga e l’altra, diventa quindi l’elemento chiave del progetto: definiscono lo spazio in modo flessibile, ma rigorosamente simmetrico, sono declinabili in diversi punti luce, possono trasformandosi in supporto per tutto ciò che è arredamento, fisso o mobile, del locale.

Programma

Locale ristorazione - bar

Stato

Completato

Anno

2014

Dimensioni

60 mq

Luogo

Fidenza, Parma

Incarico

Progetto preliminare, definitivo, esecutivo, direzione lavori e realizzazione dell’ allestimento interno.

Fotografie

Andrea Bosio

Committente

Privato

Commercialellabb60mq